





物件概要
| 所在地 神奈川県川崎市中原区井田2丁目 |
||
| 最寄り駅 東急東横線「日吉」歩13分 |
||
| 販売価格 6,980万円 |
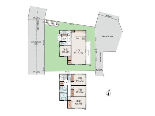
建物面積 96.87㎡ |
土地面積 139.46㎡ |
| 間取り 4LDK |
築年月 令和7年11月完成 |
引渡時期 相談 |
| 備考BELS/省エネ基準適合認定書あり / 駐車2台可 / 2沿線以上利用可 / システムキッチン / 浴室乾燥機 / 閑静な住宅地 / LDK15畳以上 / 総合病院 徒歩10分以内 / 対面式キッチン / トイレ2ヶ所 / 2階建 / 通風良好 / 全居室フローリング / 都市ガス / 食器洗乾燥機 | ||
所在地
東急東横線「日吉」歩13分
この物件へのお問い合わせ
