





横浜市戸塚区戸塚町 新築戸建 4,430万円
◆◇全8区画(今回販売2棟)◇◆
◆10万円台~購入可能です◆
□戸塚駅まで平坦アプローチ
□カースペースあり
□閑静な住宅地です♪
物件概要
| 所在地 神奈川県横浜市戸塚区戸塚町 |
||
| 最寄り駅 JR横須賀線「戸塚」バス8分 日之出橋 歩4分 |
||
| 販売価格 4,430万円 |
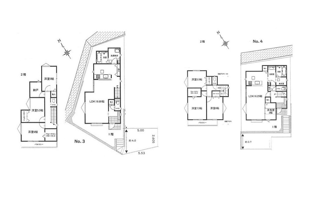
建物面積 95.85㎡・96.89㎡ |
土地面積 109.49㎡・114.3㎡ |
| 間取り 3LDK・3LDK+S |
築年月 令和8年4月末完成予定 |
引渡時期 相談 |
| 備考 2沿線以上利用可 / LDK18畳以上 / スーパー 徒歩10分以内 / 南向き / システムキッチン / 浴室乾燥機 / 全居室収納 / 駅まで平坦 / 閑静な住宅地 / 和室 / 庭 / 対面式キッチン / トイレ2ヶ所 / 浴室1坪以上 / 2階建 / 南面バルコニー / 床下収納 / 緑豊かな住宅地 / ウォークインクローゼット / リビング階段 / 都市ガス / 小学校 徒歩10分以内 / 開発分譲地内 |
||
所在地
JR横須賀線「戸塚」バス8分 日之出橋 歩4分
この物件へのお問い合わせ
