


横浜市瀬谷区橋戸3丁目 新築戸建 価格4,780万円・4,980万円
【全2棟・新築戸建て】
【2台駐車可能♪(車種による)】
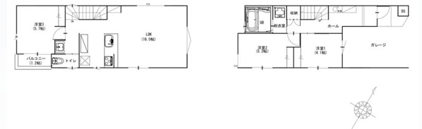
□ゆとりの広さのLDK♪
□制震装置 【SAFE365による耐震・制震】
□充実した設備・仕様です!
物件概要
| 所在地 神奈川県横浜市瀬谷区橋戸3丁目 |
||
| 最寄り駅 相鉄線「瀬谷」徒歩18分 |
||
| 販売価格 4,780万円・4,980万円 |
建物面積 87.48・103.68㎡ |
土地面積 110.45・130.00㎡ |
| 間取り 3LDK・4LDK |
築年月 2025年10月 |
引渡時期 相談 |
| 備考 フラット35Sに対応 / 駐車2台可 / システムキッチン / 浴室乾燥機 / 陽当り良好 / 全居室収納 / 閑静な住宅地 / LDK15畳以上 / 角地 / 和室 / シャワー付洗面化粧台 / 対面式キッチン / セキュリティ充実 / 2階建 / 南面バルコニー / オートバス / 温水洗浄便座 / 床下収納 / 浴室に窓 / TVモニタ付インターホン / 通風良好 / 都市ガス / 浄水器 |
||
所在地
相鉄線「瀬谷」徒歩18分
この物件へのお問い合わせ























































