









横浜市瀬谷区北新 新築戸建 5,080~5,180万円
◆本物件に限り◆
仲 介 手 数 料 半 額
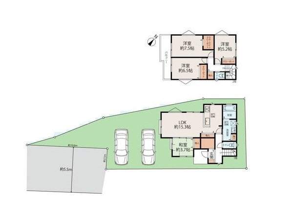
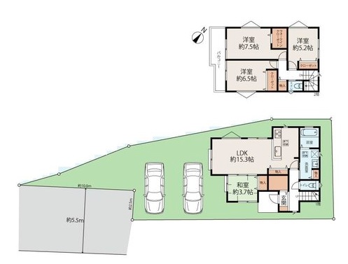
◆駐車場3台分あり◆
□シューズインクロークあり
□ウォークインクロゼットあり
□敷地と道路は高低差が無くフラットな条件
物件概要
| 所在地 神奈川県横浜市瀬谷区北新 |
||
| 最寄り駅 相鉄本線「瀬谷」バス5分北新東歩9分 |
||
| 販売価格 5,080・5,180万円 |
建物面積 97.51㎡・98.55㎡ |
土地面積 157.87㎡・174.76㎡ |
| 間取り 4LDK |
築年月 令和8年2月中旬完成予定 |
引渡時期 相談 |
| 備考 駐車3台以上可 / 2沿線以上利用可 / 土地50坪以上 / LDK18畳以上 / スーパー 徒歩10分以内 / 浴室乾燥機 / 全居室収納 / 閑静な住宅地 / 和室 / 庭 / 対面式キッチン / 浴室1坪以上 / 2階建 / 複層ガラス / パントリー(食器・食品の収納庫) / ウォークインクローゼット / 都市ガス / シューズインクローク / 小学校 徒歩10分以内 / 食器洗乾燥機 |
||
所在地
相鉄本線「瀬谷」バス5分北新東歩9分
この物件へのお問い合わせ
