


物件概要
| 所在地 神奈川県厚木市戸室4丁目 |
||
| 最寄り駅 小田急小田原線「本厚木」バス12分 「戸室」停歩8分 |
||
| 販売価格 未定 |
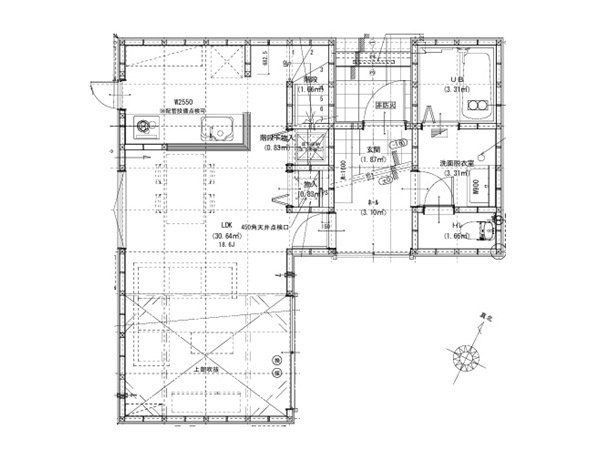
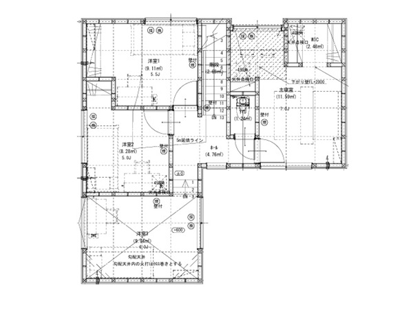
建物面積 97.30㎡ |
土地面積 123.10㎡ |
| 間取り 4LDK |
築年月 未定 |
引渡時期 相談 |
| 備考 LDK18畳以上 / システムキッチン / 陽当り良好 / 整形地 / 対面式キッチン / トイレ2ヶ所 / 2階建 / 全居室フローリング / リビング階段 |
||
所在地
小田急小田原線「本厚木」バス12分 「戸室」停歩8分
この物件へのお問い合わせ
